
This website uses cookies. For more informacition about cookies, visit Cookies section of the site. It is your sole responsibility not allow or disable the usage of cookies. In such a case, it may be that limited functionality or exclusion of some parts of the browsed web site.
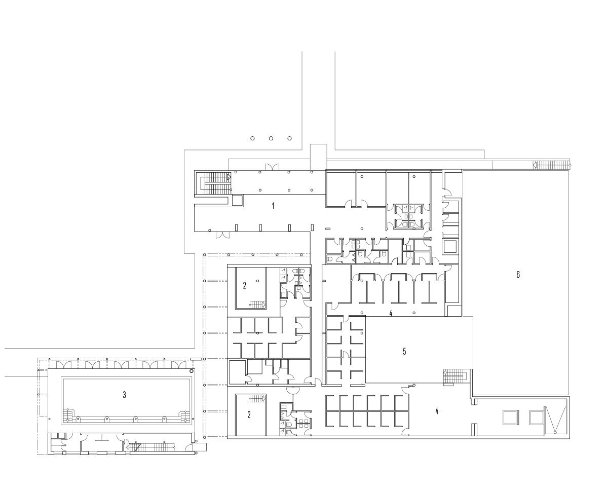
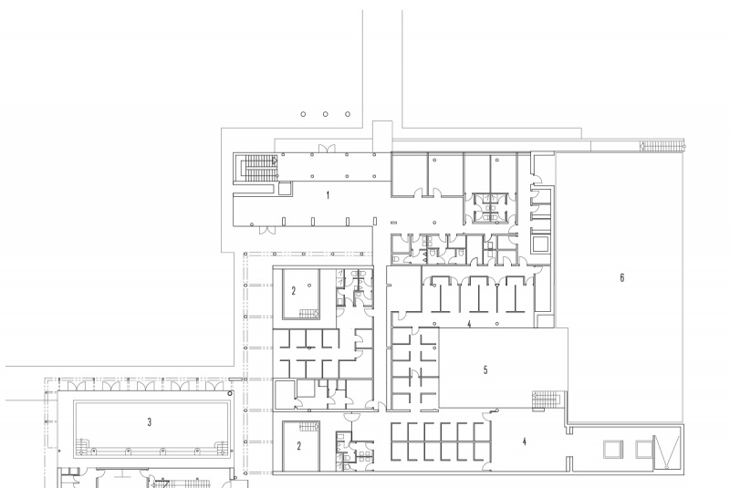
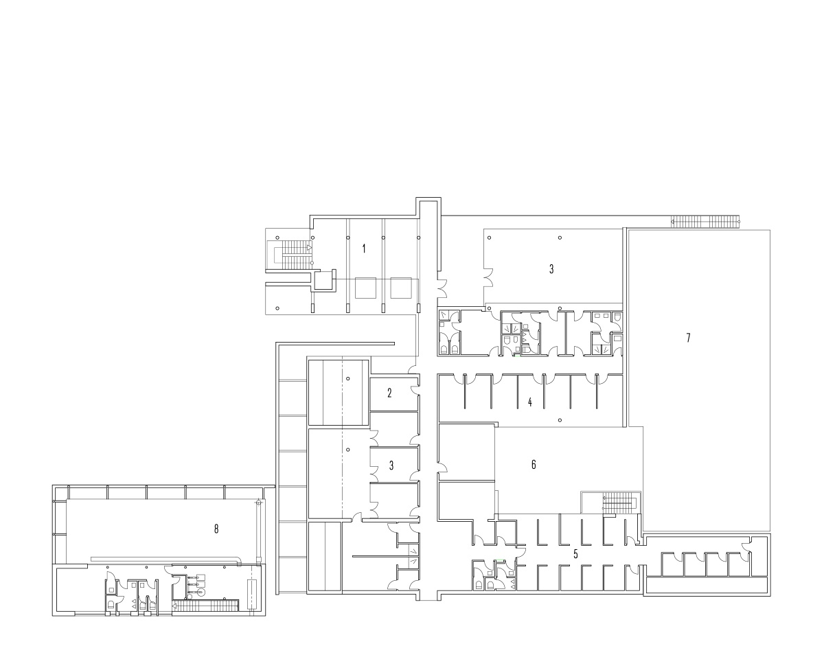
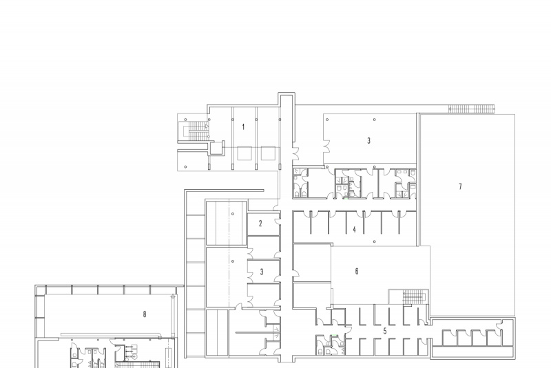
In the Balneotherapy building the echo of Piešťany´s interwar functioning still resounds. The strictly disciplined figure was added to the older buildings, but within the available space an independent artistic theme was developed. A notion of minimalism was often used in connection with this building, although in principle it did not fulfill its primary ideals. Closer to the truth is rather the notion of pure pragmatism. Šmondrk did not complain about modesty of investment; on the contrary, from an emergency he created virtue. The building was left exposed to some extent: naked frame, white plaster, white-coated steel elements, simple ceramic tiles and non-slip rubber. The essence of excellence is rooted in the concept, in particular in the work with space and light. This is the foundation of everything. Light fills the two-floored entrance hall and the indoor swimming pool facing the garden, but is also included in the intimate areas of the spa house neighboring the large atrium. Glazed and opaque surfaces alternate in a composition that combines two antagonistic camps - creative intent and operational efficiency. In 1998 the Balneotherapy building was nominated for the European Union Prize for Contemporary Architecture - Mies van der Rohe Award.
Address: Piešťany, Teplická 81
Project: 1996
Realisation: 1997 - 1998
Client: Vojenský kúpeľný ústav, Piešťany