
This website uses cookies. For more informacition about cookies, visit Cookies section of the site. It is your sole responsibility not allow or disable the usage of cookies. In such a case, it may be that limited functionality or exclusion of some parts of the browsed web site.
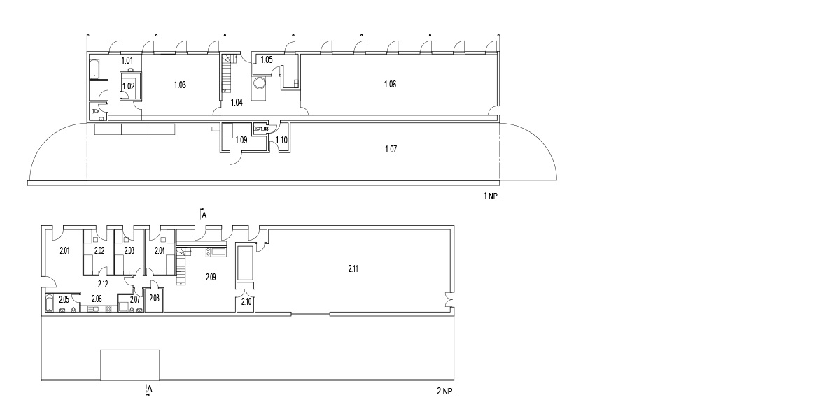
This settlement of Nová Baňa gradually reduces its density towards the mountains, until becoming completely dispersed among the meadow and mixed forest covered hills. Right here, in a county in which construction activities occur only very tentatively, the building of new stables for racehorses has met with the topic of contemporary architecture probably for the first time. Horses, with their relaxed lives have ideal conditions here; there is enough fresh pasture and a space to exercise. The stables, housing professional equipment, therefore ideally complements the framework for breeding. The disposition of the building is clearly readable from outside. On the ground floor the stables are accessible from two sides with the window and door facing the green courtyard. Access to the stable from the top is protected by the cantilevered upper deck supported by thin poles. A studio and living spaces is found upstairs. The expressive horizontal body of the stables is structured with a regular pattern of dark red wooden wings, alternating with doors and windows embedded in a white frame, which is perhaps the only reference to traditional stables.
Address: Nová Baňa, Sklenô
Project: 2003
Realisation: 2006
Client: private person
Gross area: 750 m²