
This website uses cookies. For more informacition about cookies, visit Cookies section of the site. It is your sole responsibility not allow or disable the usage of cookies. In such a case, it may be that limited functionality or exclusion of some parts of the browsed web site.
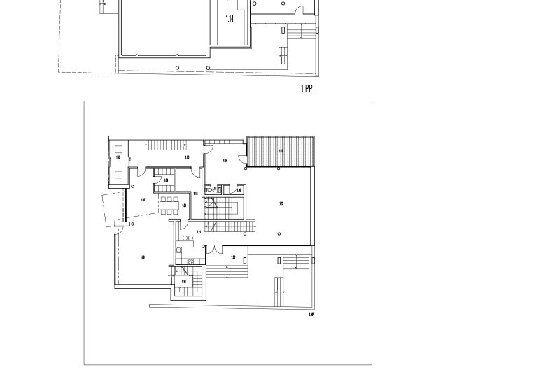
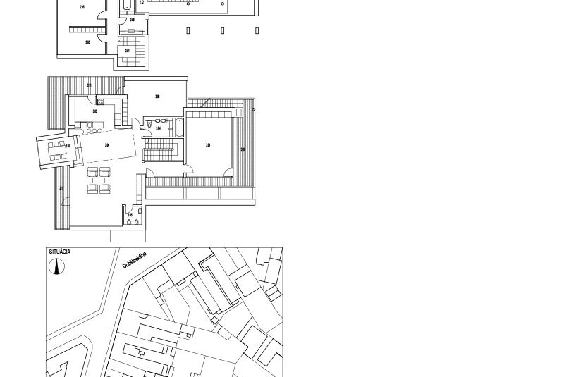
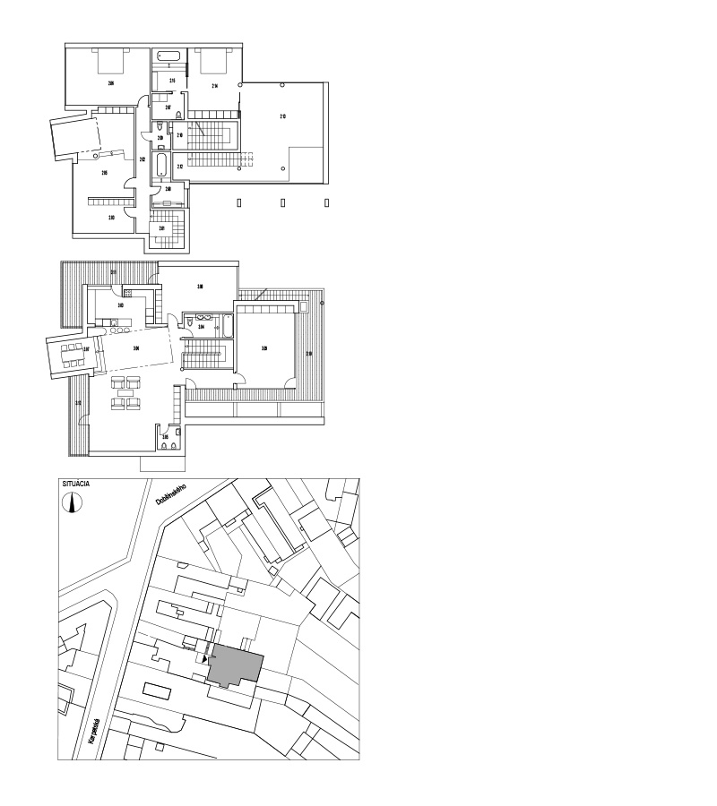
From the complicated remaining land area of the residual inner courtyard the architect´s aim was to create a living area for himself and his relatives. To fit three flats into a problematic area besieged by older, disparate buildings was not an easy task. At first sight, mutual distribution of flats is reminiscent of a puzzle. Only concentrated study of the floor plans reveals that each flat has a specific internal logic set according to the individual demands of the residents. Traditional schematics cannot be found here. Although the house lacks foreground with greenery, each apartment has its own refuge in the open air, either in the form of an atrium or patio. Perhaps the greatest asset of these apartments is their surprising views. Despite a quite extroverted composition, the house is intimate. Its interior is opened through the use of large areas of glass which friendly alleviate its qualitative advantage towards its surroundings. A welcoming aspect can also be found in the unexpected color accents, including bright yellow and red columns in the portico of one atrium. Photo: Bobo Boška
Address: Bratislava, Karpatská st. 22
Project: 2003 - 2004
Realisation: 2004 - 2005
Client: private person