
This website uses cookies. For more informacition about cookies, visit Cookies section of the site. It is your sole responsibility not allow or disable the usage of cookies. In such a case, it may be that limited functionality or exclusion of some parts of the browsed web site.
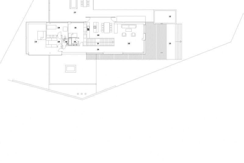
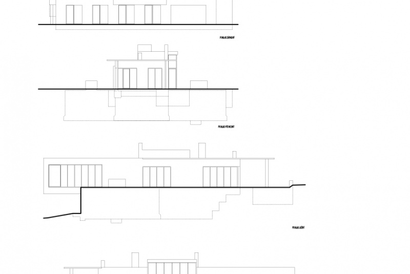
The natural placement of the house in the terrain reflects the owner´s respect towards nature which is also very close to the architect himself. All building interventions therefore strive to be more than friendly to the original attributes of the nice sunny lot. Šmondrk unified the whole residential project in two simple perpendicular blocks. In order to maintain the original field profile he partially buried the lower block and he emphasized connection with the land through slate tiles. He covered the upper block with wooden facade panels. The lot has one more feature – a pavilion, in which the owner´s office is situated. It also has the ambition of blending in with the environment; the rear portion is therefore sunk into the ground and greenery as a carpet smoothly flows onto the vegetation roof.
Address: Bratislava
Project: 2008
Realisation: 2008 - 2009
Client: private person