kfa.art rešpektuje ochranu vašich údajov

Táto internetová stránka používa technológiu cookies. Bližšie informácie o súboroch cookies nájdete v sekcii webstránky Cookies. Je Vaším právom neudeliť súhlas s používaním súborov cookies alebo ich používanie zablokovať. V takom prípade sa môže stať, že bude pre Vás obmedzená alebo vylúčená úplná funkcionalita niektorých častí prehliadanej webovej stránky.

Rodinný dom pri potoku

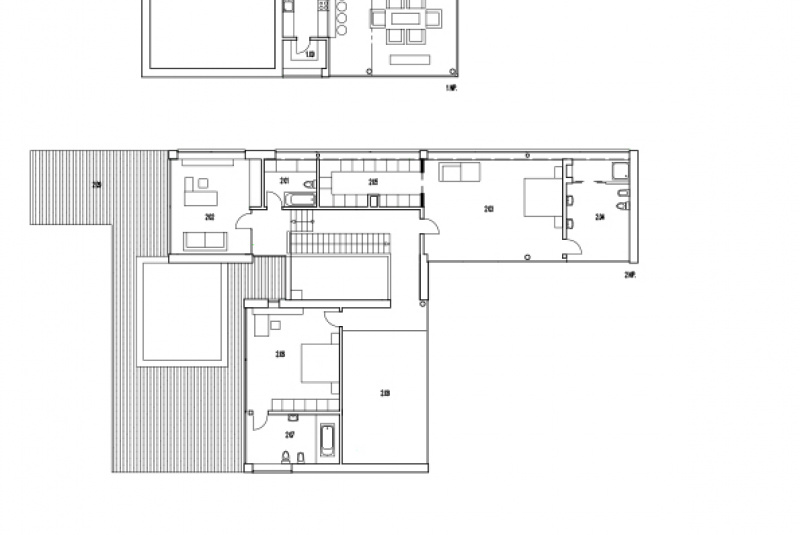
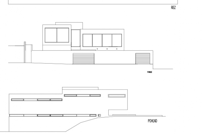
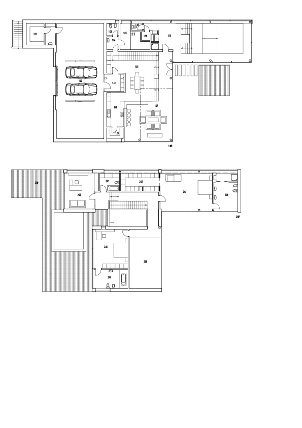
Limbach bol pôvodne typickou dedinou malokarpatskej vinohradníckej oblasti. V súčasnosti je z neho vyhľadávaný prímestský satelit Bratislavy s pomerne rozsiahlou výstavbou nových rodinných domov. K vychyteným lokalitám patrí aj pôvodne rekreačne ladené Slnečné údolie, ktorým sa vinie miestny potok. Dom stojí na peknej parcele v jeho tesnej blízkosti. Pravouhlý ansámbel je položený na prevýšenej platforme votknutej do mierneho svahu. Hoci pôsobí nanajvýš kompaktne, jeho jadro prevzdušňuje presklené átrium pod strešným svetlíkom. Bývanie sa rozvíja na dvoch podlažiach: prízemie obsadili prevádzky dennej zóny a vysunuté krídlo s bazénom. Na poschodí sú spálne, kúpeľne a najmä pracovňa, ktorá sa usídlila v odvážnej vysunutej hmote. Foto: Paťo Safko

Miesto: Limbach, Slnečné údolie
Projekt: 1999
Realizácia: 2000 - 2001
Klient: súkromná osoba

celková úžitková plocha: 600 m²
celková obytná plocha: 350 m²

Architektúra / Rodinný dom pri potoku - foto
Architektúra / Rodinný dom pri potoku - foto
Architektúra / Rodinný dom pri potoku - foto
Architektúra / Rodinný dom pri potoku - foto
Architektúra / Rodinný dom pri potoku - foto
Architektúra / Rodinný dom pri potoku - foto
Architektúra / Rodinný dom pri potoku - foto
Architektúra / Rodinný dom pri potoku - foto
Architektúra / Rodinný dom pri potoku - foto