
Táto internetová stránka používa technológiu cookies. Bližšie informácie o súboroch cookies nájdete v sekcii webstránky Cookies. Je Vaším právom neudeliť súhlas s používaním súborov cookies alebo ich používanie zablokovať. V takom prípade sa môže stať, že bude pre Vás obmedzená alebo vylúčená úplná funkcionalita niektorých častí prehliadanej webovej stránky.
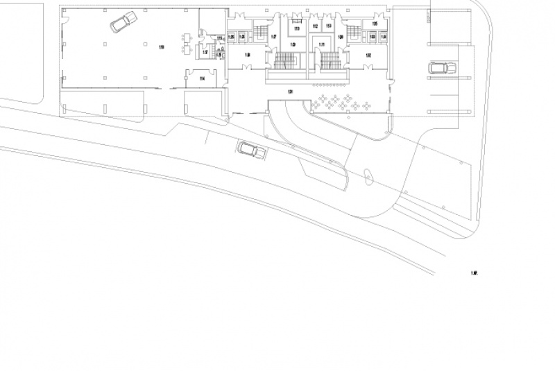
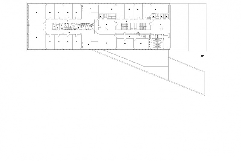
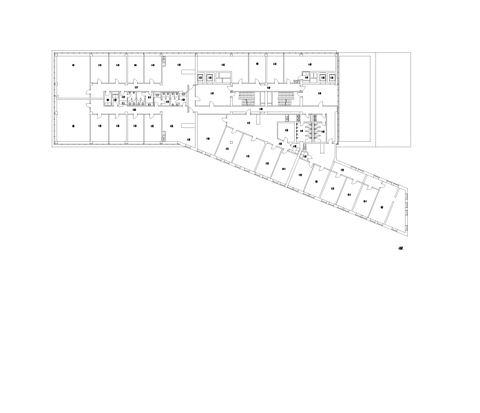
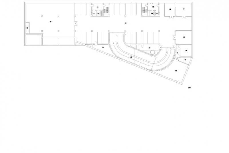
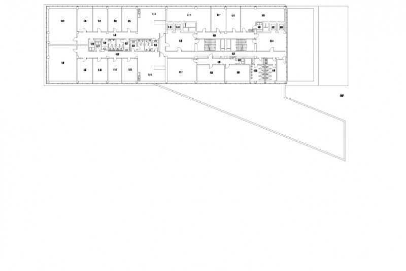
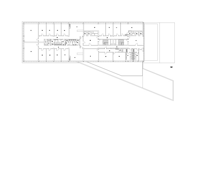
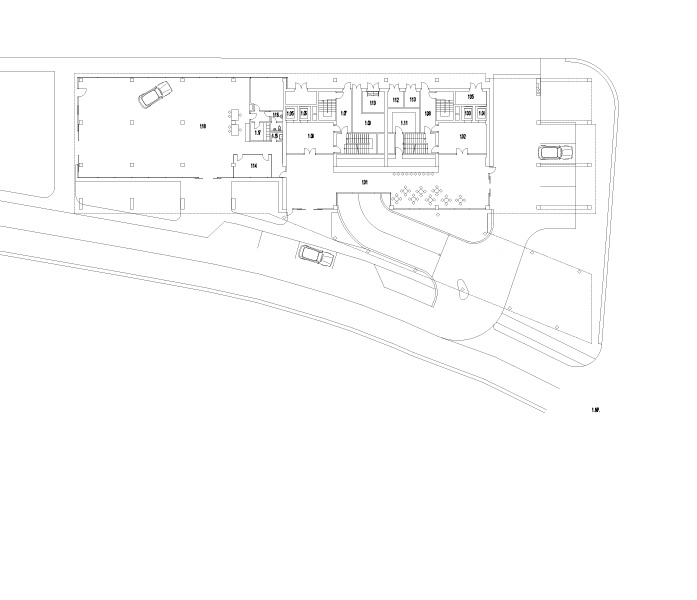
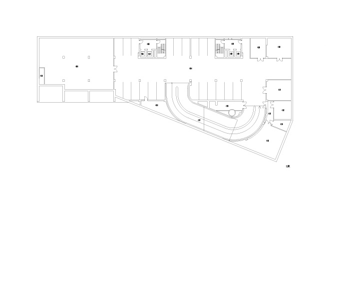
Návrh, ktorý vzišiel z vyzvanej súťaže riešil plnohodnotnú zástavbu komplikovanej parcely v tvare trojuholníka. Objem rozdelený na dve výškovo rozdielne hmoty mal na mieste kríženia ciest vytvoriť nový pulzujúci uzol s vysokou koncentráciou administratívnych priestorov najvyššieho štandardu a doplnkových služieb v obchodnom parteri, kde by sa odohrával aktívny mestský život. Redefinovanie dopravných vzťahov, parkovanie, nová vysoká zeleň – parametre architektonickej i prevádzkovej kvality boli nastavené na maximálny možný výkon aj z pohľadu kultivácie celej lokality, ktorej dosiaľ chýba vlastná identita.
Miesto: Bratislava, Hraničná ul.
Projekt: 2008
Realizácia:
Klient: VenCorp Slovakia, a.s.