
Táto internetová stránka používa technológiu cookies. Bližšie informácie o súboroch cookies nájdete v sekcii webstránky Cookies. Je Vaším právom neudeliť súhlas s používaním súborov cookies alebo ich používanie zablokovať. V takom prípade sa môže stať, že bude pre Vás obmedzená alebo vylúčená úplná funkcionalita niektorých častí prehliadanej webovej stránky.
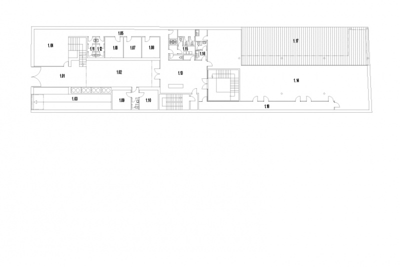
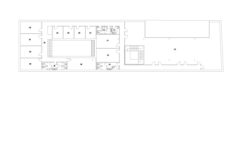
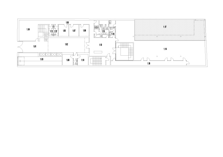
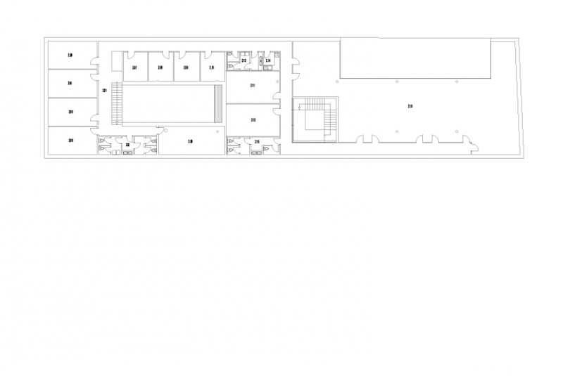
Dom s kombinovanou funkčnou náplňou obsadil pomerne úzky a dlhý pozemok v typickej, trochu malomestskej zástavbe na Karpatskej ulici. Je určený na prenájom, no jeho forma si potrpí na vyššie, než prvoplánovo komerčné zámery. Za zdržanlivým uličným priečelím sa odvíja viacvrstvový priestorový program s jadrom v podobe uzavretého átria a otvoreného dvora. Obopínajú ho štyri krídla kancelárií, na ktoré v zadnom trakte nadväzuje ďalší stavebný objem s veľkým open-space priestorom členeným obnaženými stĺpmi. Na najvyššom podlaží je veľký byt. A, samozrejme, rozsiahla terasa naplnená špecifickou atmosférou tejto lokality.
Miesto: Bratislava, Karpatská 18
Projekt: 1998
Realizácia: 1999
Klient: 1999