kfa.art rešpektuje ochranu vašich údajov

Táto internetová stránka používa technológiu cookies. Bližšie informácie o súboroch cookies nájdete v sekcii webstránky Cookies. Je Vaším právom neudeliť súhlas s používaním súborov cookies alebo ich používanie zablokovať. V takom prípade sa môže stať, že bude pre Vás obmedzená alebo vylúčená úplná funkcionalita niektorých častí prehliadanej webovej stránky.

Vila Elena

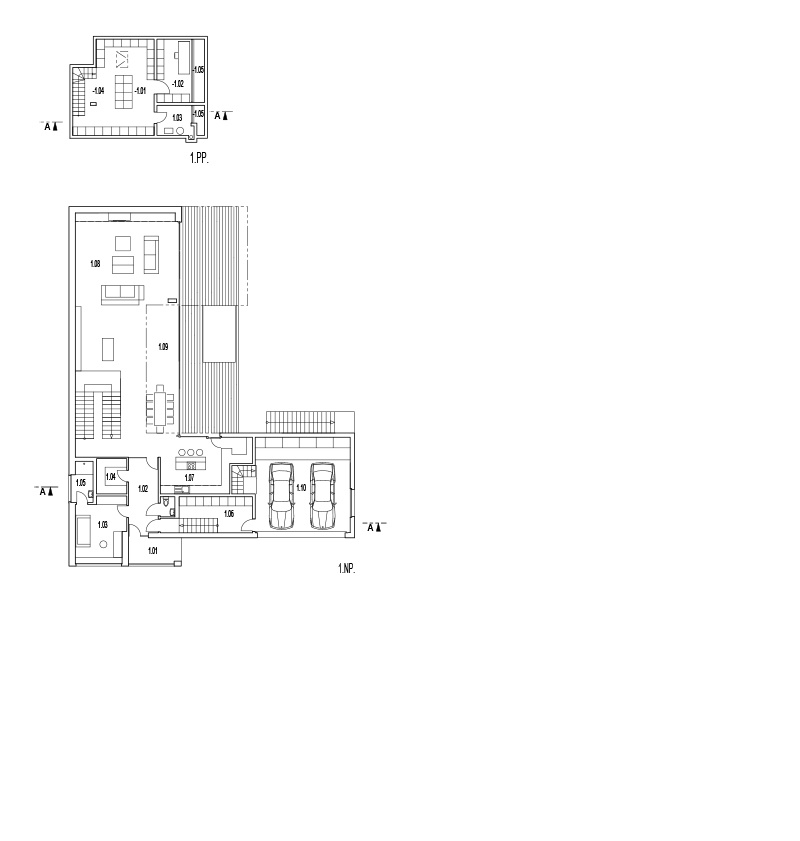
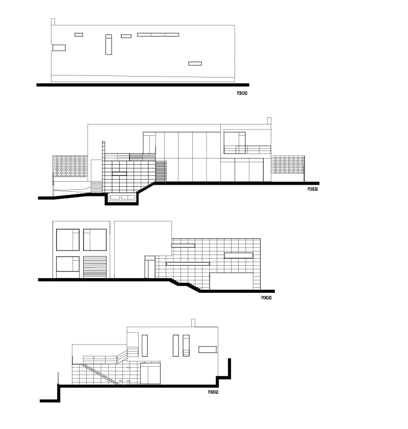
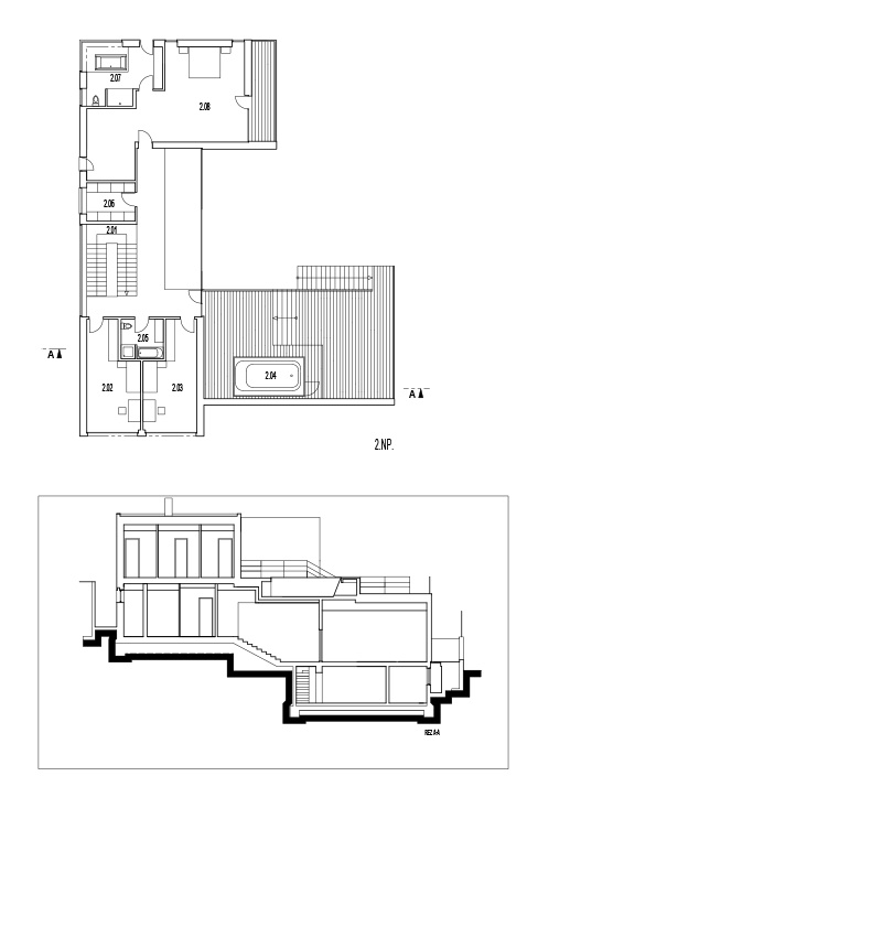
Belostné teleso sa mazná s estetikou primárnej geometrie, presné hrany rámujú ansámbel fasádnych presklení, okien a terás. Aj vnútorné usporiadanie prezrádza prítomnosť vyššieho poriadku. Objekt v tvare L otvára svoje krídla smerom do záhrady, ktorá bývaniu pridáva ďalšiu dimenziu. Od ulice si však buduje zdržanlivý odstup, ktorý podčiarkuje pieskovcový obklad. Aktívny rodinný život sa odohráva na prízemí s dispozičným diagramom založeným na plynulom prelínaní jednotlivých funkcií. Vstupná hala, kuchyňa, jedáleň, obývačka a susedné terasy – každá časť je plnohodnotnou súčasťou celku. Poschodie je naopak uzavreté, aby prospievalo súkromiu každého člena rodiny. Zásadnou črtou vily je jej precíznosť. A to i v tých najmenších detailoch. Každá skrutka, špára či dlaždica absolvovala dôkladnú projekciu s ešte dôkladnejšou realizáciou. Jednotlivé kroky smerovali k dlhovekosti, nad ktorou bdie v kameni vytesaný nápis Vila Elena na vstupnom priečelí. Ako za starých čias, avšak podľa dnešných pravidiel. Foto: Paťo Safko

Miesto: Bratislava, Staré grunty
Projekt: 2005
Realizácia: 2005 – 2007
Klient: súkromná osoba
Architektúra / Vila Elena - foto
Architektúra / Vila Elena - foto
Architektúra / Vila Elena - foto
Architektúra / Vila Elena - foto
Architektúra / Vila Elena - foto
Architektúra / Vila Elena - foto
Architektúra / Vila Elena - foto
Architektúra / Vila Elena - foto
Architektúra / Vila Elena - foto
Architektúra / Vila Elena - foto
Architektúra / Vila Elena - foto
Architektúra / Vila Elena - foto
Architektúra / Vila Elena - foto
Architektúra / Vila Elena - foto