kfa.art rešpektuje ochranu vašich údajov

Táto internetová stránka používa technológiu cookies. Bližšie informácie o súboroch cookies nájdete v sekcii webstránky Cookies. Je Vaším právom neudeliť súhlas s používaním súborov cookies alebo ich používanie zablokovať. V takom prípade sa môže stať, že bude pre Vás obmedzená alebo vylúčená úplná funkcionalita niektorých častí prehliadanej webovej stránky.

Vila K.F.A.

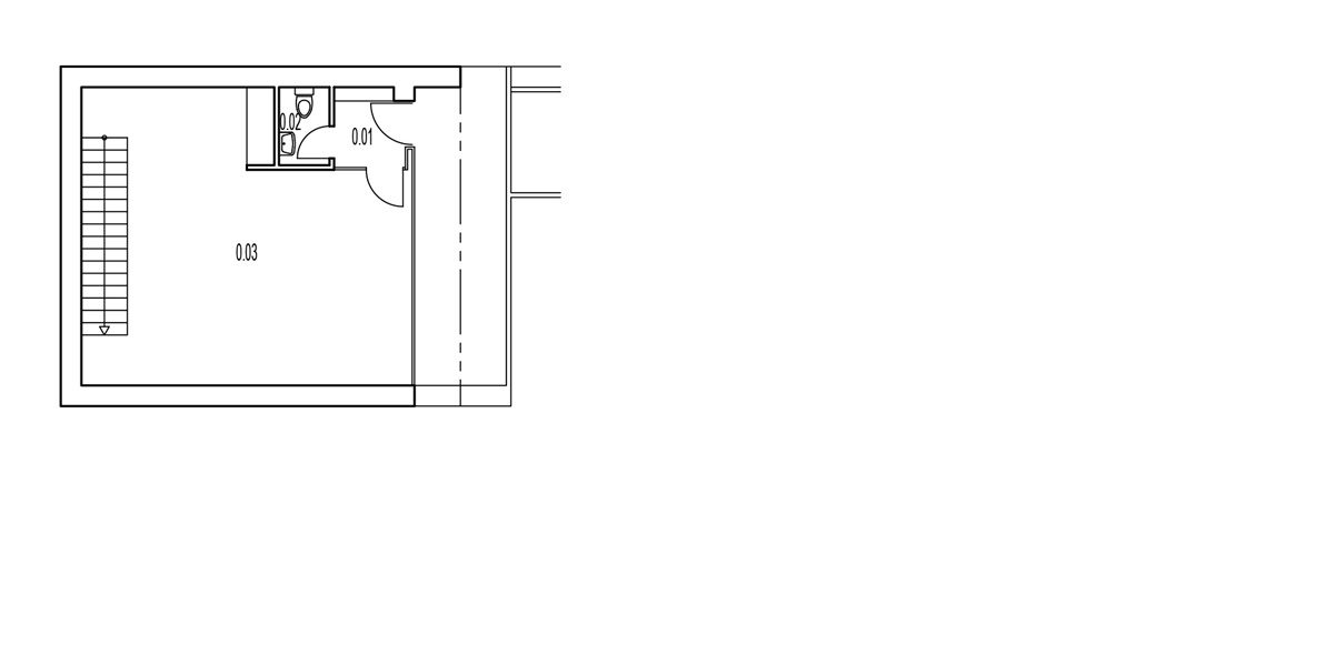
Jednoduchý biely hranol s jediným oknom. Obsiahne všetky tri podlažia, ktoré sú voľné, nečlenené a cez obrovské spoločné presklenie úplne odkryté. Za plnou stenou je vlastne len toaleta. V tých časoch to bol revolučný čin, v ktorom mnohí hľadali odozvy na ikonický pavilón od architekta Philipa Johnsona, či dom Fransworth od Miesa van der Roheho. V každom prípade tu však nejde „len“ o formálny manifest. Dom, ktorý architekt využíval ako ateliér a vlastné bývanie, reaguje najmä na priestorové možnosti parcely. K dispozícii bol úzky pozemok v zadnom dvore natesno obkľúčený nesúrodou predvojnovou zástavbou. Jediný smer, ktorý ponúkal aký-taký odstup a výhľad, bol juhovýchod orientovaný do spomínaného dvora. Všetky ostatné priečelia teda zostali uzavreté s výnimkou stropu – dosky plochej strechy nad najvyšším podlažím, ktorú vyľahčuje dvojica veľkých kruhových svetlíkov. Vilka bola dlho baštou Štúdia K.F.A., a tak bezprostredne demonštrovala ideály svojho autora.

Miesto: Bratislava, Karpatská 11
Projekt: 1995
Realizácia: 1997
Klient: Štúdio K.F.A.
Architektúra / Vila K.F.A. - foto
Architektúra / Vila K.F.A. - foto
Architektúra / Vila K.F.A. - foto
Architektúra / Vila K.F.A. - foto
Architektúra / Vila K.F.A. - foto
Architektúra / Vila K.F.A. - foto
Architektúra / Vila K.F.A. - foto