kfa.art rešpektuje ochranu vašich údajov

Táto internetová stránka používa technológiu cookies. Bližšie informácie o súboroch cookies nájdete v sekcii webstránky Cookies. Je Vaším právom neudeliť súhlas s používaním súborov cookies alebo ich používanie zablokovať. V takom prípade sa môže stať, že bude pre Vás obmedzená alebo vylúčená úplná funkcionalita niektorých častí prehliadanej webovej stránky.

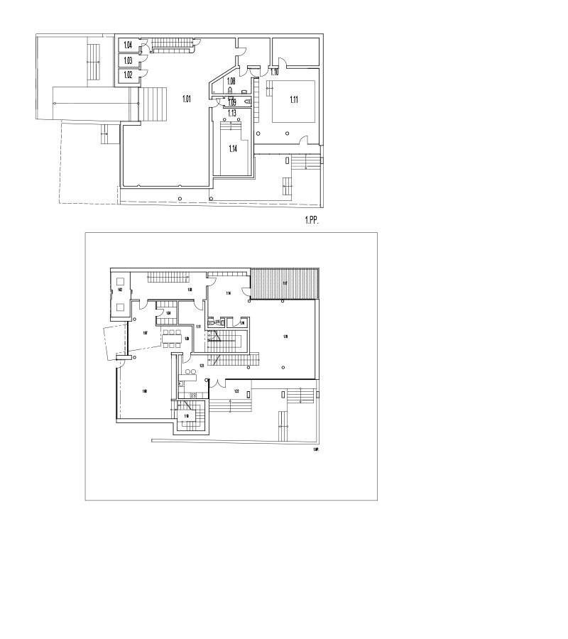
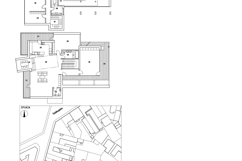
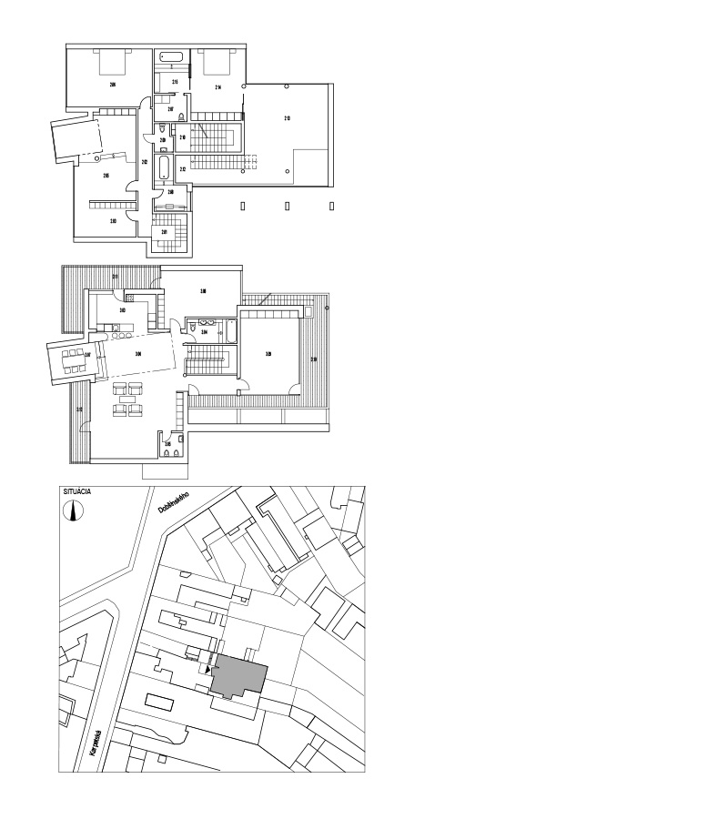
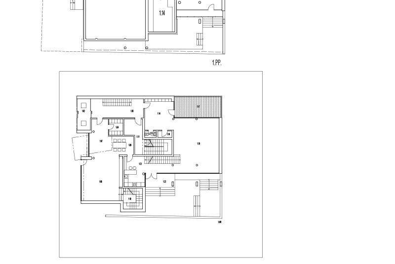
Vila Henrieta

Na zložitej zvyškovej parcele vnútorného dvora išlo o vytvorenie zázemia, ktoré si architekt navrhol sám pre seba a svojich najbližších. Vtesnať tri byty do tak problematického priestoru obkľúčeného staršou, nesúrodou zástavbou, nebola žiadna hračka. Vzájomné rozloženie jednotlivých bytov na prvý pohľad pripomína rébus, až koncentrované štúdium pôdorysov odhalí, že každý z nich má špecifickú vnútornú logiku nastavenú podľa individuálnych nárokov ich obyvateľov. Tradičné schémy tu však nenájdeme. Hoci domu chýba predpolie so zeleňou, každý z bytov má svoje vlastné refúgium na čerstvom vzduchu, buď vo forme átria či terasy. No ich azda najväčšou devízou sú na tomto mieste také prekvapivé výhľady. Dom je napriek pomerne intímnej náplni dosť extrovertný, svoje vnútro otvára cez veľké presklenia, a tým akoby priateľsky zmierňoval svoj kvalitatívny náskok voči okoliu. Rovnako ústretovým gestom môžu byť aj nečakané farebné akcenty: žiarivo žlté stĺpy a červený portikus v jednom z átrií.

Miesto: Bratislava, Karpatská 22
Projekt: 2003 - 2004
Realizácia: 2004 - 2005
Klient: súkromná osoba
Interiér / Vila Henrieta - foto
Interiér / Vila Henrieta - foto
Interiér / Vila Henrieta - foto
Interiér / Vila Henrieta - foto
Interiér / Vila Henrieta - foto
Interiér / Vila Henrieta - foto
Interiér / Vila Henrieta - foto
Interiér / Vila Henrieta - foto
Interiér / Vila Henrieta - foto